开餐饮店,最怕的不是没客流,而是装修完拿着图纸去办《食品经营许可证》时,被市监局一句“布局不合理,整改”打回原形。砸了几十万装修,只因一张厨房设备布局图纸不合规,这种惨剧每天都在上演。
很多老板以为随便画个草图,或者让装修师傅凭经验摆摆灶台就行,大错特错!2026年,随着食品安全监管的数字化和精细化,监管部门对后厨动线、功能区划分的要求达到了前所未有的高度。今天,我们就手把手教您如何绘制一张能一次性通过审批的餐饮厨房设备布局图纸,帮您省下数万元的整改费和宝贵的时间成本。
一、为什么你的布局图总被拒?三大“死穴”要避开
在提交审核前,先自查您的图纸是否犯了以下三个致命错误:
动线交叉污染(最常见问题)监管的核心逻辑是“生熟分离、脏净分流”。如果您的图纸上,传菜路线与收残路线交叉,或者生食清洗区紧挨着熟食切配区,直接一票否决。原则: 必须形成“原料进入→粗加工→切配→烹饪→备餐→出餐”的单一流向,严禁回流。
功能分区缺失或面积不足很多小餐馆为了省空间,取消了独立的“洗消间”或“凉菜间”。根据最新规定,凡是涉及冷食制售(如凉菜、刺身),必须设立专间,且面积不得小于5-8平方米(视各地具体标准),并配备独立空调、紫外线灯和二次更衣设施。没有这个独立方块,图纸必挂。
设备标注不清,缺少关键参数图纸上不能只画个方框写“冰箱”。必须明确标注:水池数量(通常要求至少3个:一洗二冲三消毒)、冰柜类型(生熟分开)、排烟罩尺寸、地沟走向及隔油池位置。模糊的图纸会让审核人员质疑您的卫生控制能力。
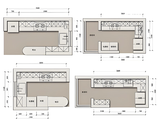
二、2026年过审版厨房布局图:四大核心区怎么画?
一张合格的布局图,必须清晰呈现以下四个核心区域,并用不同颜色或虚线明确界限:
1. 原料接收与粗加工区(脏区)
位置:靠近后门或货梯入口,远离出餐口。
必备设备:货架、解冻池、蔬菜清洗池、肉类清洗池、水产清洗池(必须分设,防止交叉)。
绘图要点:标注“污物通道”,显示废弃物如何直接运出,不经过清洁区。
2. 切配与烹饪区(热区)
位置:厨房中心地带,连接粗加工与备餐区。
绘图要点:重点标注排烟管道走向和隔油池位置(这是环保和食药双查的重点)。灶台与墙壁之间需预留检修通道。

3. 专间与备餐区(净区·重中之重)
位置:靠近出餐口,但必须相对封闭。
必备设备:
绘图要点:专间必须画成“房中房”结构,标明预进间(缓冲间),展示洗手消毒流程。这是审核员拿着放大镜看的地方。
4. 洗消与保洁区(回归区)
位置:靠近出餐口回收端,但与食品加工区有物理隔断。
绘图要点:严格遵循“脏碗进入→刮渣→清洗→冲洗→消毒→保洁”的单向流程,严禁洁净餐具与脏餐具路径交叉。
三、给老板的实操建议:如何搞定这张图?
不要自己手绘草图提交哪怕您画得再整齐,缺乏专业比例尺和图例的草图很难体现专业性。建议使用CAD软件绘制,或找专业的商用厨房设计公司出具图纸。这笔钱(通常几百到一两千元)绝对不能省,它是您办证的“通行证”。
提前咨询,因地制宜不同城市、甚至不同街道的市监所对面积比例(如厨房面积不小于餐厅面积的30%)要求略有差异。在动工装修前,务必拿着初步方案去辖区监管所咨询,获取当地的“负面清单”。
细节决定成败在图纸备注栏加上:“地面采用防滑环氧地坪,墙角做圆弧处理,排水沟加盖防鼠网,所有水池标识‘一洗二冲三消毒’”。这些细节能让审核人员看到您对食品安全的重视,大幅增加过审概率。
结语
餐饮办证,厨房设备布局图纸不仅是几张线条,更是您店铺合规运营的骨架。一张科学的图纸,不仅能帮您顺利拿下许可证,更能优化后厨效率,降低食品安全风险。
记住:先画图,后装修;先咨询,后动工。 别让一张不合格的图纸,成为您创业路上的第一块绊脚石。按照本文的指南规划您的后厨,祝您办证一路绿灯,生意兴隆!













)







